Ausführungsprojekt, 2013 | Mit vorfabrizierten Fassadenelementen vor Grossraumbüros feiert das Kirk Hus Mies van der Rohes Motto "less is more". Doch schaut man genauer hin, entdeckt man "less and more".
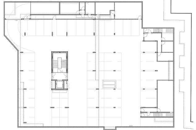
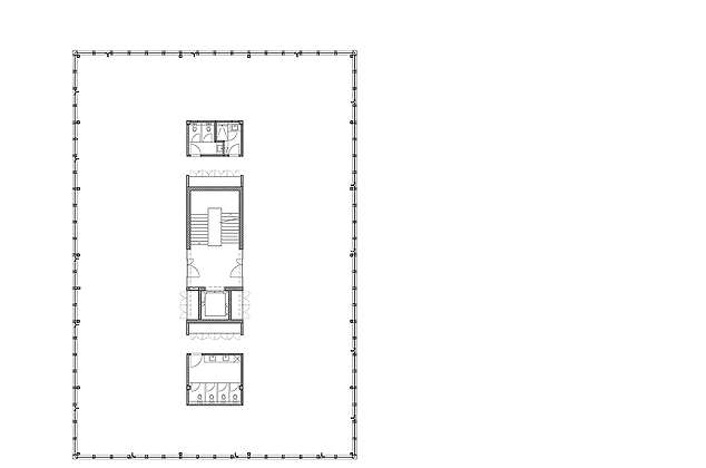
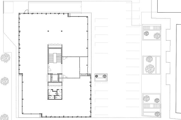
Das repräsentative Bürohaus befindet sich in Baar direkt an der Bahnstrecke Zug — Zürich. Der fünfgeschossige Bau weist rund 3400 Quadratmeter Büroflächen auf. Ein Gebäudekern bündelt die Erschliessung so, dass in den stützenfreien Büroflächen maximale Flexibilität entsteht. Die grossflächigen Fassadenverglasungen schaffen lichtdurchflutete Räume. Die gleichförmige Fensterfront verleiht dem Bau Ruhe und Seriosität. Mit seinen zurückspringenden Sockel– und Attikapartien wirkt der Bau zugleich leicht und dynamisch. Die Fassade ist in Elementbauweise mit zwei verschiedenen Elementen (mit/ohne Fensteröffnung) konzipiert.








Projektbeteiligte
Auftraggeber: Heinz Häusler Real Estate Invest. AG
Arge: mit Casco Architekten, Cham
Fachplaner HLK: OLOS AG, Baar
Bauingenieure: Aeschbach AG, Hedingen
Lichtplaner: Ueli Schärer Electro Engineering, Baar
Bauingenieure: Aeschbach AG, Hedingen
Kennwerte
Bruttogeschossfläche: 4‘000 m2
Baukosten: 6,5 Mio. CHF
Fertigstellung: Februar 2013