offener Wettbewerb, 2022 | Ein vielseitiges Gefäss für Kirchgemeinde Bruder Klaus
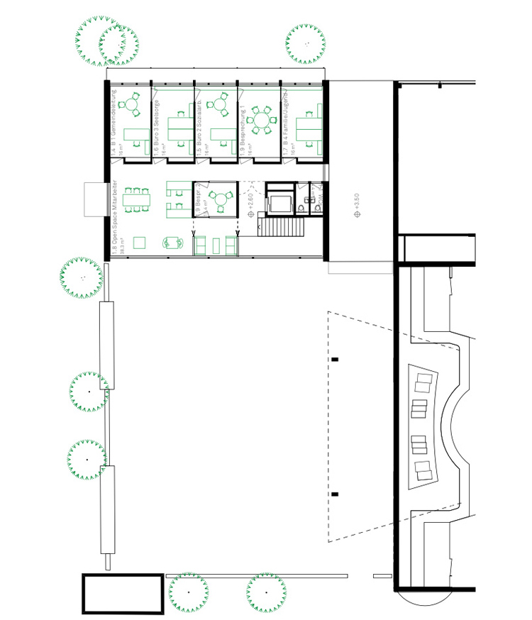
Entgegen seinem Namen schlägt das Projekt «Elefant» ein möglichst kleines Bauvolumen vor. Das gesamte oberirdische Volumen ist als Holzbau konzipiert, zum Teil aus fertigen Wandelementen, zum Teil als Stabwerk. Kein hermetisches Konzept - eher konstruktive Spielwiese – ganz wie eine Kirchgemeinde funktionieren sollte.Folgerichtig zeigt sich das Projekt zu allen Seiten offen, lädt zum Eintreten ein. Im Inneren fliessen die Räume, können mit grossen Türen verbunden oder getrennt werden.
Es sind die Gemeindemitglieder und ihre Gäste, die das Haus bespielen, die entscheiden, wie die Räume genutzt werden.

Von aussen zeigt sich «Elefant» ganz wie der Elefant, den die fünf blinden Gelehrten im Auftrag ihres Königs untersuchen sollen: Unterschiedliche Ansichten ergeben scheinbar unvereinbare unterschiedliche Beschreibungen. Erst wer alle Seiten gesehen hat, unvoreingenommen die Gemeinsamkeit sucht, der erkennt das allem zugrunde liegende Konzept.



Auftraggeber: röm. kath. Kirchgemeinde Bruder Klaus Liestal
Bilder: Philip Loskant Arch.
Grundstücksfläche: 850 m2
Nutzfläche: je 450 m2
Kosten: 2'2 mio. chf




