offener Wettbewerb, 1. Stufe, 2022 | Ein Theaterersatzbau im Herzen Luzerns
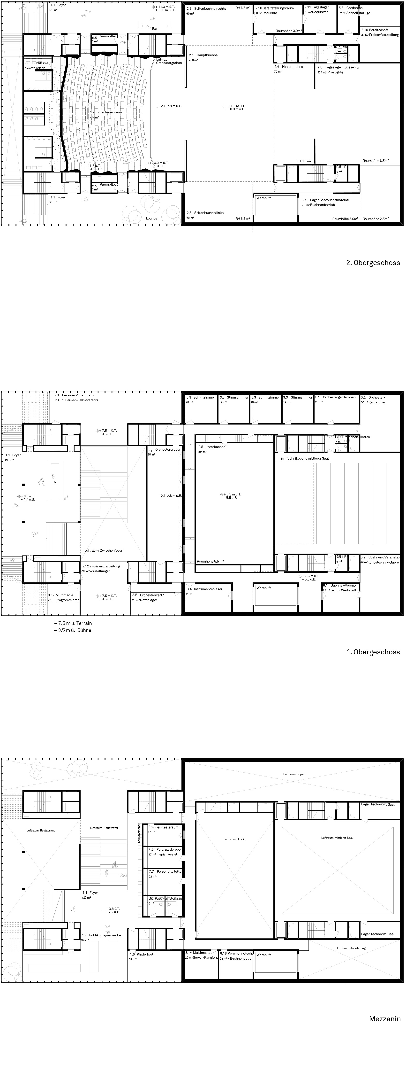
Zwei Baukörper treten im Duett auf die Bühne. Der eine ist eine vage Erinnerung an das was einmal war, das alte Theater. Er besetzt denselben Ort wie sein Vorgänger, folgt denselben traditionellen Linien. Der zweite Baukörper hat die Leichtigkeit eines jüngeren Kumpanen. Etwas unbedarft, oder kokett, besetzt er den alten Freiraum des Theaterplatzes. Er ist für alles und alle offen . Ein Publikumsliebling. Die Spannung dieses Duetts liegt in der Gleichzeitigkeit des eins- und dennoch zwei-seins. Freiraum: Der kleinere Baukörper setzt die Baulinien seines Duettpartners nahtlos fort. Er bespielt den Platz mit seinem ebenerdigen Restaurant, lässt sein Mobiliar weit auf den Platz hinaus – und das Platzleben tief in sein Inneres. So werden aus dem transitorischen Raum der Promenade eine folge von Orten zum Verweilen. Architektur und Innere Organisation: Grosser Saal und Bühne befinden sich im zweiten Obergeschoss auf rund 10 m Höhe über dem Platz. Sie bilden das verbindende Rückgrat zwischen beiden Baukörpern, den inneren Kern. Diese erhöhte Lage lässt mittleren Saal und Studio unter Hinterbühne und Untermaschinerie Platz finden. Das Erdgeschoss des Platzbaus ist mit Restaurant und grosser Freitreppe Herzstück des open house. Von hier gelangt das Publikum über die bespielbare Freitreppe ins Mezzanin, durchwandert das Foyer des 1. OGs mit Blick auf die Jesuitenkirche und gelangt über die offenen Ecktreppen zu den Foyers des grossen Saals. Sechs Treppenhäuser mit Liften bilden die Eckpunkte der Inneren Welt. Sie sind vertikale Lebensader für Personen und Materialflüsse und innere Pfeiler der gesamten Gebäudestruktur.


Auftraggeber: Projektierungsges. Neues Luzerner Theater
Bilder: Philip Loskant Arch.
Grundstücksfläche: 5358 m2
Nutzfläche: 6084 m2
Invest. Kosten: 120 mio. chf


