selektives Verfahren, 2018 | Ein junges Hotel am Waldrand
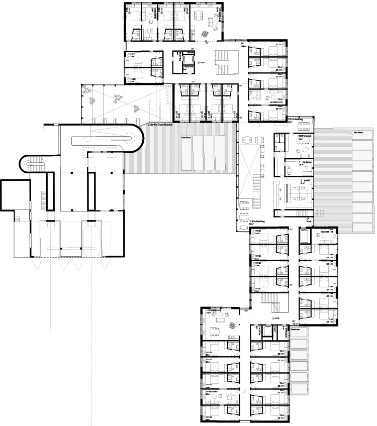
Das «Open House Furtschellas» erweitert die bestehende Talstation zum zwanglosen Ensemble. Wie ein Weiler aus grossen Hütten gruppieren sich die Baukörper um einen Empfangshof. Restaurants und Bar sind als «Open Housse» konzipiert: Räume fliessen, laden zum Sein und Verweilen ein - wir sind nicht Gast, wir fühlen uns unter Freunden. Das Erscheinungsbild erinnert bewusst an land- und forstwirtschaftliche Bauten. Das Open House möchte kein schmuckes Engadiner Dorf sein. Es ist die Hütte am Waldrand. Das Waldhaus, das getarnt vom Waldrand aus die Ebene beobachtet.
Das Selektive Verfahren fand unter neun Konkurrenten statt. Gewonnen hat leider ein anderes Büro.

© Nightnurse Images, Zürich

© Nightnurse Images, Zürich





© Nightnurse Images, Zürich
Auftraggeber: Corvatsch AG
Bilder: Nightnurse Images, Zürich
Grundstücksfläche: Hotel 15'100 m2
Bruttogeschossfläche: 5'900 m2
Kostenschätzung: 20,5 mio. chf



