Projektentwicklung, 2021 | Nachhaltig wohnen im Obwaldnerischen St. Niklausen
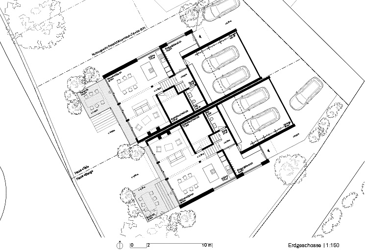
Ein Doppelhaus im Weiler St. Niklausen der Gemeinde Kerns/OW. Das Grundstück liegt an ländlicher Südlage mit Aussicht über das Sarnerland. Das Ortsbild wird von weiten Wiesen und ortstypischen Wohnhäuser geprägt. Gebaut wird nachhaltig in Holzelementbauweise und Minergie-P-Standard.
Beide Häuser haben die gleichen Split-Level-Grundrisse und machen so die Hanglage zum innenräumlichen erlebnis. Die Zimmer sind platzsparend organisiert – wir bieten maximales auf kleinstem Grund. Die Panoramafenster dienen nicht nur der Aussicht – im Winter lassen sie die Sonne tief ins innere und werden somit zur passiven Heizung des Gebäudes. Im Sommer schützen weit ausladende Dächer und Balkone vor der hochstehenden Sonne. Haus «Berg» verfügt über ein grösseres Grundstück, einen Gartensitzplatz und Balkon vor den Schlafzimmern im Obergeschoss. Haus «Tal» hat eine Veranda zum Garten. Beide Bauten haben somit leicht unterschiedliche Eigenschaften, erscheinen aber dennoch als gestalterisches Ensemble.





Auftraggeber: Privat
Bilder: Philip Loskant Arch.
Grundstücksfläche: 348 m2 / 517 m2
Nutzfläche: je 224 m2
Kosten: 1'15 mio. chf / 1'23 mio. chf



